- 防火柵欄兩用門
- 聯系我們
產品說明
防火柵欄門

一、產品用途
防火及柵欄兩用門用于井下主排水泵和主變電所硐室之間;采區變電所的通道內;帶式輸送機,絞車配電電氣設備和變電器硐室等通道內,如井下發生火災時,使燃燒不擴散蔓延,保證礦井安全。
二、型號、規格
防火及柵欄兩用門共有4個規格,見下表:

注:顏色一般為橙黃色和灰色,也可根據客戶要求而定。

三、產品說明
本防火及柵欄兩用門為煤炭工業部武漢煤礦設計研究院設計,產品質量標準和檢測標準嚴格執行Q/WMS-3011-2005《防火及柵欄兩用門》。
四、產品主要結構
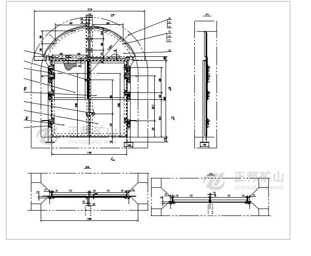
防火及柵欄兩用門由門框、門扇、閉鎖裝置等部件組成。
1、門框為角鋼豎框和有半圓封板的角鋼上橫梁聯接而成,無下門框。
2、門扇為角鋼、鋼板、鋼板網組焊而成,鋼板網對應安裝鋼板門扇。
3、閉鎖裝置采用里外轉動手柄和卡子。
五、安裝示意圖






蘇公網安備32031202000947號